APARTAMENTO - PINHEIROS - SP

Apartamento

Descrição

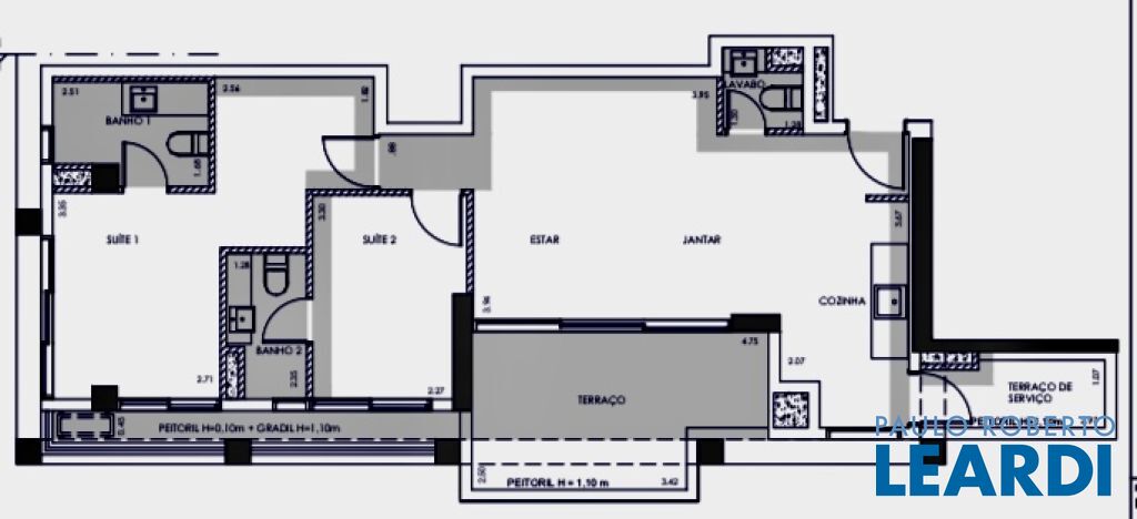
Apartamento em condomínio novo, 94 m2, com 02 suítes, Sala, Lavabo, Cozinha integrada a sala, área de serviço e um ótimo terraço gourmet. Suíte master com closet na entrada. APTO NO CONTRA PISO. Área de lazer completa.
A Fradique Coutinho é um símbolo de Pinheiros e da Vila Madalena. É nome de estação do metrô e endereço de restaurantes, lojas e até cinema de rua. Perfeitamente alinhado ao contexto e valorizando a diversidade natural do bairro, o edifício que inclui loja, unidades não-residenciais e apartamentos de diversos tamanhos, desde studios até 3 dormitórios. Inclui, também, espaços de uso comum para os moradores e uma pequena praça aberta à cidade.Toda essa complexidade e dinâmica foi traduzida numa arquitetura limpa e elegante, composta de grandes volumes independentes entre si, mas todos com a mesma linguagem. A estrutura regular se repete entre eles, formando blocos, vazios e verdes que, generosamente, rompem seu ritmo regular.1512

Detalhes

  • R$ 2.419.920,00
  • R$ 1,00
  • R$ 1,00
  • 94.00 ㎡
  • 2
  • 2
  • 2
  • 1
  • Residencial
  • 2024

Características

Localização

Anunciante

Endereço:
Rua Cônego Eugênio Leite, 933 - Conj. 31 - Pinheiros , São Paulo - SP
#

Outros Imóveis Relacionados

Residencial / Fazenda Residencial / Fazenda
  • Para Venda

Debossan

  • 8 Quartos
  • 10 Banheiros
  • 20 Vagas
  • 1,205
R$ 3.000.000,00
Cobertura Cobertura
  • Para Venda

Ana Lúcia

  • 2 Quartos
  • 3 Banheiros
  • 2 Vagas
  • 114
R$ 850.000,00
Apartamento Apartamento
  • Para Venda

Piatã

  • 3 Quartos
  • 2 Banheiros
  • 1 Vaga
  • 80
R$ 480.000,00

Quer anunciar seu imóvel conosco?

Nós podemos ajudá-lo a negociar seu imóvel com agilidade e segurança.